2世帯住宅
2020.07.04
こんにちは。
設計の細川です。
梅雨も半ば
蒸し暑い季節です
新型コロナの感染者が都内で100人超え
まだまだ厳し日常、
いわきでは、マスクしていない人も以前と比べて多い気がします
これからどうなるんだろう
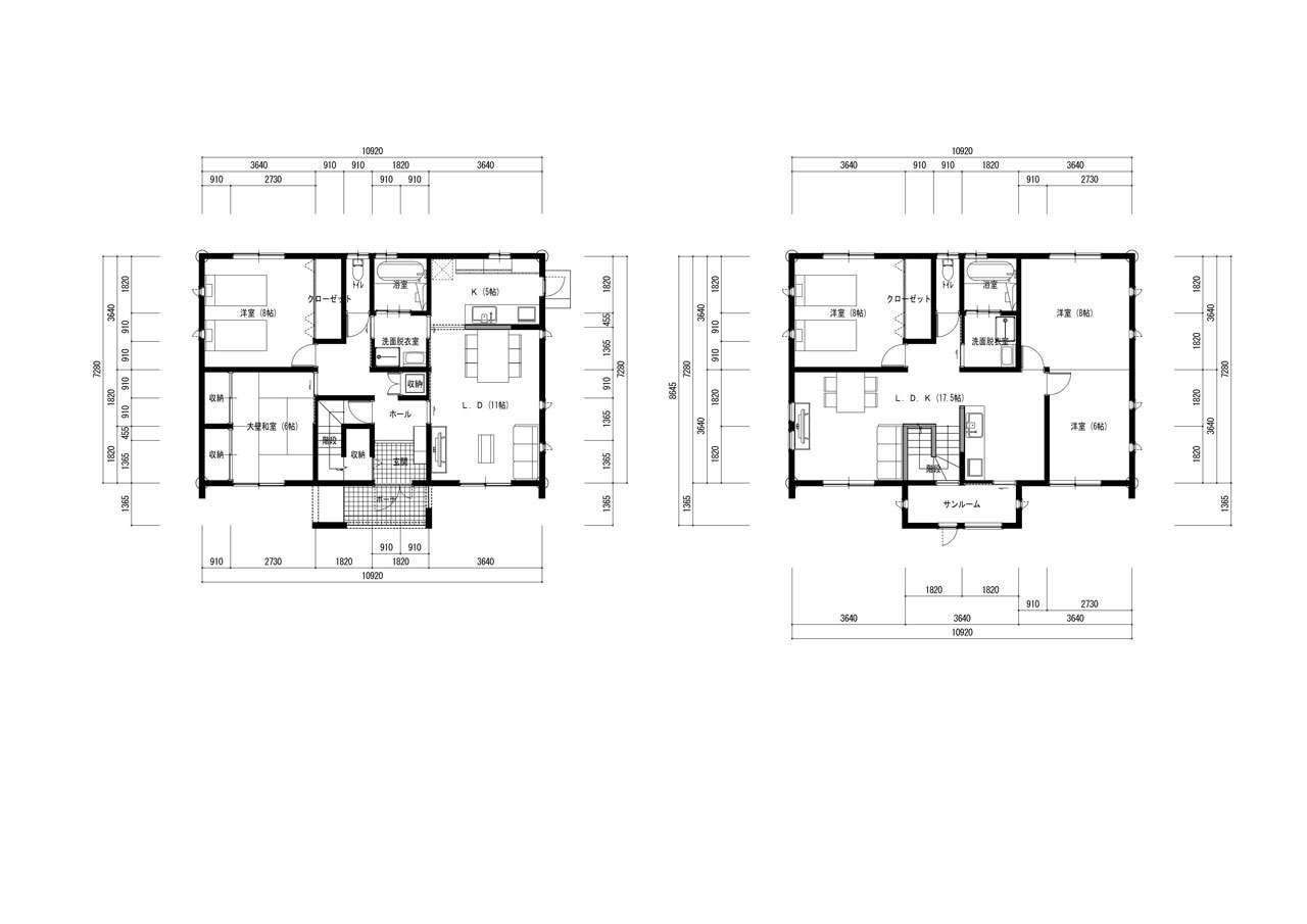
以前2世帯住宅で企画で作成した図面です。
玄関は一緒で、
1階が親世帯(大人2人) 2階が子世帯(大人2人、子2人)を想定して作成しています。
49.59坪(163.95㎡)比較的コンパクトになっています。

1階LDK16帖、寝室8帖+クローゼット、和室6帖、水回りも別々で十分な広さだと思います。
2階のLDKが少し狭い気がしますが、ダイニングテーブルを置かなければ十分な広さ
サンルームが付いているので室内干し可
リモートワークに書斎代わりとして使っても可
古い図面なのでYUCACO使用にするには変更が必要

二世帯には、同居型、共用型、完全分離型があります。
今回の図面は共用型になります。
一部を共有するので、
玄関以外にも水回りなども共有したりします。
今回の図面は、玄関だけなので比較的プライバシーは保てますが、
水回りも共有すると、使用時間の問題や音などが気になるので、
トラブルになる場合も
同居型は、文字通り同居するタイプです。
寝室以外すべて共有
サザエさん一家がそうなります。
完全分離型は、上下で分けたり、左右で分けたり、完全に分けるタイプです。
プライバシーが保てるので、トラブルになるこたはほぼありませんが、
広い土地と設備も2つになるので建築費が掛かります。
どちらにしても、メリットとデメリットがあるので
よく話し合って楽しく暮らせる住まいを作っていくことが大事です。
ご参考までに
見学会のご予約はこちら>>>【見学ご予約フォーム】
新モデルハウス&ショールームはこちら>>>【新モデルハウス&ショールーム】
一年中快適で特許取得のYUCACOシステム
温度と湿度さらに空気の流れまでコントロールされた住まいを
ぜひご体感になってはいかがでしょうか
問い合わせはこちら>>>【お問い合わせ】
YUCACOシステムはこちら>>>【YUCACOシステム】
土地・建売住宅はこちら>>>【土地・建売住宅】
設計の細川です。
梅雨も半ば
蒸し暑い季節です
新型コロナの感染者が都内で100人超え
まだまだ厳し日常、
いわきでは、マスクしていない人も以前と比べて多い気がします
これからどうなるんだろう
以前2世帯住宅で企画で作成した図面です。
玄関は一緒で、
1階が親世帯(大人2人) 2階が子世帯(大人2人、子2人)を想定して作成しています。
49.59坪(163.95㎡)比較的コンパクトになっています。

1階LDK16帖、寝室8帖+クローゼット、和室6帖、水回りも別々で十分な広さだと思います。
2階のLDKが少し狭い気がしますが、ダイニングテーブルを置かなければ十分な広さ
サンルームが付いているので室内干し可
リモートワークに書斎代わりとして使っても可
古い図面なのでYUCACO使用にするには変更が必要

二世帯には、同居型、共用型、完全分離型があります。
今回の図面は共用型になります。
一部を共有するので、
玄関以外にも水回りなども共有したりします。
今回の図面は、玄関だけなので比較的プライバシーは保てますが、
水回りも共有すると、使用時間の問題や音などが気になるので、
トラブルになる場合も
同居型は、文字通り同居するタイプです。
寝室以外すべて共有
サザエさん一家がそうなります。
完全分離型は、上下で分けたり、左右で分けたり、完全に分けるタイプです。
プライバシーが保てるので、トラブルになるこたはほぼありませんが、
広い土地と設備も2つになるので建築費が掛かります。
どちらにしても、メリットとデメリットがあるので
よく話し合って楽しく暮らせる住まいを作っていくことが大事です。
ご参考までに
見学会のご予約はこちら>>>【見学ご予約フォーム】
新モデルハウス&ショールームはこちら>>>【新モデルハウス&ショールーム】
一年中快適で特許取得のYUCACOシステム
温度と湿度さらに空気の流れまでコントロールされた住まいを
ぜひご体感になってはいかがでしょうか
問い合わせはこちら>>>【お問い合わせ】
YUCACOシステムはこちら>>>【YUCACOシステム】
土地・建売住宅はこちら>>>【土地・建売住宅】
