商品ラインナップ セレクトオーダーの企画住宅 商品ラインナップ セレクトオーダーの企画住宅

2階建ての企画住宅

2階建ての企画住宅 mv

価格を抑えつつ品質にも妥協しない

家づくりをしたいけれど、家族旅行にも行きたい、子どもの教育費や、老後の蓄えのためにも、住まいに掛ける費用は出来るだけ抑えたい。

そんな希望を叶えるために誕生したのが、価格重視の企画住宅「Primo(プリモ)」シリーズです。

でも、いくら価格を抑えるためとは言え、ファーストホームは品質を犠牲にすることは出来ません。

そこで、住まいの価格を大きく左右する建物面積に着目し、間取りを徹底的に見直すことで、面積を抑えつつ、必要な居室を確保し、且つ狭さを感じさせないプランを作り上げました。

デッドスペースになりがちな廊下を出来る限り減らしたり、リビング内にオープンな和室を設けたり、より効率的な居室空間の配置や、無駄の無い動線設計を行うことで、実際の面積以上に快適な住まいをつくり出し、厳選した21プランをご用意しました!

価格を抑えつつも充実した装備のprimo(プリモ)シリーズで、お客様の家づくりを叶えます。

36plans 選べる58プラン! 一部をご紹介します!

11坪プラン・3LDK

(P25-1)

スタイリッシュな外観にゆったりリビング

H11 外観
H11 間取り図

1F床面積44.71㎡(13.52坪)

2F床面積39.74㎡(12.02坪)

延床面積84.45㎡(25.54坪)

施工面積94.38㎡(28.54坪)

コミコミ価格1,811.26万円(税込)

※付帯工事費、外構工事費込み

返済シミュレーション

土地代金:550万円

現場諸経費:50万円

借入総額:2,411.26万円

頭金0円、ボーナス支払い0円

変動金利0.6%、40年返済の場合

月々返済

土地代込み!56,516

15坪プラン・3LDK

(P30-1)

南の光がそそぐリビングと
多機能に使える2階ホール

P30-1 外観
H17-2 間取り図

1F床面積49.68㎡(15.02坪)

2F床面積49.68㎡(15.02坪)

延床面積99.36㎡(30.04坪)

施工面積112.59㎡(34.04坪)

コミコミ価格2,086.7万円(税込)

※付帯工事費、外構工事費込み

返済シミュレーション

土地代金:550万円

現場諸経費:50万円

借入総額:2,686.7万円

頭金0円、ボーナス支払い0円

変動金利0.6%、40年返済の場合

月々返済

土地代込み!62,972

19坪プラン・4LDK

(P33-3)

広々LDKに、大容量WIC

P33-3 外観
P33-3 間取り図

1F床面積60.86㎡(18.41坪)

2F床面積49.68㎡(15.02坪)

延床面積110.54㎡(33.43坪)

施工面積118.39㎡(35.80坪)

コミコミ価格2,316.6万円(税込)

※付帯工事費、外構工事費込み

返済シミュレーション

土地代金:550万円

現場諸経費:50万円

借入総額:2,916.6万円

頭金0円、ボーナス支払い0円

変動金利0.6%、40年返済の場合

月々返済

土地代込み!68,360

20坪プラン・4LDK

(P33-4)

充実収納×安心設計で暮らしにゆとりを

P33-4 外観
P33-4 間取り図

1F床面積57.96㎡(17.53坪)

2F床面積52.99㎡(16.03坪)

延床面積110.95㎡(33.56坪)

施工面積126.05㎡(38.12坪)

コミコミ価格2,294.6万円(税込)

※付帯工事費、外構工事費込み

返済シミュレーション

土地代金:550万円

現場諸経費:50万円

借入総額:2,894.6万円

頭金0円、ボーナス支払い0円

変動金利0.6%、40年返済の場合

月々返済

土地代込み!67,845

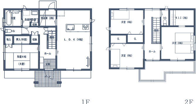
34坪プラン・3LDK

(P34-1)

人気の2way玄関、リビングもゆとりの広さ
収納たっぷり、便利な2階ホール

P34-1 外観
P34-1 間取り図

1F床面積55.48㎡(16.78坪)

2F床面積57.96㎡(17.53坪)

延床面積113.44㎡(34.31坪)

施工面積133.05㎡(40.23坪)

コミコミ価格2,316.6万円(税込)

※付帯工事費、外構工事費込み

返済シミュレーション

土地代金:550万円

現場諸経費:50万円

借入総額:2,916.6万円

頭金0円、ボーナス支払い0円

変動金利0.6%、40年返済の場合

月々返済

土地代込み!68,360

※上記お支払い例は、参考シミュレーションとなります。土地代金は当社売主の分譲地で試算しています。登記料・住宅ローン諸費用等は含まれておりません。購入時にかかる手数料、保証料、経費などは別途必要になります。ご利用にあたっては所定の審査・条件がございます。土地の状況により、下水道工事、浄化槽工事などが、別途発生する場合がございます。